By Dave and Mary

Bungalow Floor Plans

Bungalow Style Homes with Front Porches

Bungalow floor plans can vary in both style and features. Bungalow style homes, by their nature, exude warmth and charm.

With everything on one level, Arts and Crafts bungalows, as they are also called, are ideal for just about everyone. Couple that with fantastic porches and you'll easily have the home of your dreams.

Mary and I enjoy driving through neighborhoods full of bungalow houses; they are just so appealing to the eye and one of our favorite home styles!

You just want to relax on their porch and watch the world go by.


Bungalow style house plans
Which of these bungalows do you love?
We hope you enjoy relaxing here as you browse the bungalow style house plans we've gathered for you from Family Home Plans.


Gorgeous Bungalow Style home


Gorgeous Bungalow Style home
Family Home Plan #59198: Truly inviting bungalow floor plan, nice-sized porch (36 x 8) and generous garage and storage area
Who wouldn't love calling this place home? And even a covered porch on the back with gas logs for those cozy chilly evenings for family time.




architecturally beautiful Bungalow Style home
Beautiful bungalow with charming front porch
Photo courtesy of FL Architect Fan

Bungalow Characteristics

  • Bungalow style homes usually have only a single story but can also include partial second floors or loft areas. The distinct style of a bungalow is its low profile. Absent are vertical bungalows although some have been raised with higher foundations.

    A second-floor bungalow is often referred to as an "airplane" bungalow as it has the appearance of a cockpit protruding from the roof.
  • Bungalow floor plans are popular because of the convenience of having all the main living areas on the first floor. They are also extremely well-suited for those with limited mobility.
  • Floor plans come in a wide range of sizes to fit small and compact lots to larger plans that take advantage of more extensive lot sizes. That means that craftsman bungalow house plans are idea for any type homeowner – young or old, single or married, large families or small.
  • Smaller bungalow houses will be designed for very efficient use of all space, typical in original bungalow designs. Most will have built-in's everywhere!


Craftsman Bungalow Floor Plans

Family Home Plans graciously let us show you a few of their many bungalow floor plans. All have great porch designs and if you are like us, we like seeing the possibilities.

family home plans logo Would you like to get more details of these plans? Great!

Simply go here and jot down the plan numbers you see with some of our pictures.



Bungalow floor plan Family Home Plans 94371
Plan #94371


Such an adorable bungalow floor plan with 1064 square feet including 2 baths and 3 bedrooms. Even an adorable porch is included in this sweet home!


diagram of bungalow floor plan 94371




Bungalow floor plan Family Home Plans number 24240
Plan #24240


Bungalow with hip roof over front porch. Wonderful starter home - 964 square feet


diagram of bungalow floor plan 24240
Plan 24240





Bungalow floor plan from Family Home Plans 42618
Plan #42618


Gable and shed roof over 436 square foot front porch; home is 1866 square feet


Bungalow floor plan diagram 42618




Did You Know?

Bungalow designs and floor plans are not limited by strict designs. Over the years, bungalow architecture has evolved and you can find styles in Queen Anne, California, Mission, Tudor, Prairie, Foursquare, Colonial and Spanish Colonial, Cape Cod, and of course, Craftsman. There are others as well.

Each has their specific characteristics, from the location of the front door to the size of the front porch. Craftsman bungalow floor plans would include built-ins, a fireplace, wide over-hanging eaves, and plastered ceilings.

Queen Anne's on the other hand, will typically have art-glass window designs, a parlor, along with wallpapered walls.




Bungalow style home with small front porch from Family Home Plans
Plan #74002
Charming bungalow with 210 square foot front porch - home is 1451 square feet


Bungalow style home plan diagram with small front porch from Family Home Plans 74002






Bungalow style home with craftsman style front porch columns
Plan #66469 classic bungalow
This classic bungalow home is 1260 square feet with a nice 128 square foot porch.


Bungalow style home with front porch plan  diagram 66469 from Family Home Plans
Plan 66469





charming bungalow home with cozy front porch from Family Home Plans 49824
Plan #49824
A very charming wrap around with 240 square foot porch; the home is 613 square feet.


bungalow home and porch plan from Family Home Plans 49824
Plan 49824





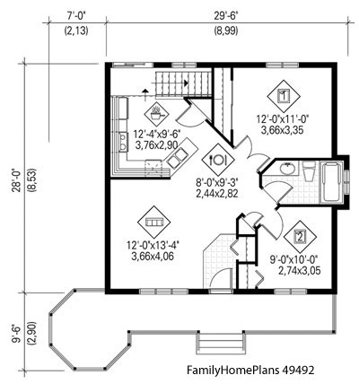
charming bungalow with veranda and pergola from Family Home Plans 49492
Plan #49492
This bungalow has a large veranda with a pergola roof. The home is 794 square feet.


bungalow home and veranda porch plan from Family Home Plans 49492
Plan 49492



interior view of a bungalow home and veranda porch plan from Family Home Plans 49492
Interior view Plan 49492





classic craftsman bungalow and front porch from Family Home Plans 65800
Plan 65800
This classic Craftsman bungalow has a 574 square foot front porch. The home is 1657 square feet. craftsman bungalow home and porch plan from Family Home Plans 65800
Plan 65800





Return to Top

family home plans logo

Search House Plans

If you see a house plan you like on our site, jot down the plan # and have it handy for when you visit Family Home Plans. They have a wonderful collection of plans and many can be modified to fit your needs. Search to your heart's content.

Are you looking specifically for a PORCH PLAN? Great, then please take a look at these porch plans they offer (very popular with our readers!)


Looking for GARAGE PLANS? Great, then please take a look at these garage plans they offer We may receive a commission if you purchase a plan through our link. The price is the same to you. See our full affiliate disclosure policy.


Have fun finding the perfect plan for your bungalow home.


Send Your Photos

quaint bungalow home Love Your Bungalow! Send us a photo of your bungalow and we'll share it with others. Live in a bungalow neighborhood? Let us know and we may very well "go on the road" to visit!

Send photos and/or info to: info(at)front-porch-ideas-and-more(dot)com




Mary and Dave, Founders of Front Porch Ideas and More
Hi! We're Mary and Dave, lifelong DIYers, high school sweethearts, and we both love porches. You've come to the right place for thousands of porch ideas.

Our Sponsors
The Porch Store


Shop for Porch Parts at Vintage Woodworks.


Use the PCA Visualizer to design your screen door

End Sponsors



Helpful Links

Enjoy shopping Amazon (affiliate link)

Popular Pages

What's New

Join Our Newsletter Family

Porch Designs

Porch Ideas for Mobile Homes

Build a Porch | Small Porches

Porch Columns | Porch Railings

Screened Porches

Porch Curtains | Porch Enclosures

Porch Landscaping | Vinyl Lattice

Porch Decorating | Porch Ideas

Shop

Navigation Aids

Home | Top of Page

Site Search | Site Map

Contact Us

Policies

Disclosure Policy | Privacy Policy

Legal Info


Please Join Us Here Also

Join us on Facebook for porch talk Join us on Pinterest Subscribe to get our updates. Thank you!


Get in touch with pre-screened local professionals for work you need done
Find a Trusted Local Pro




Copyright© 2008-2025
Front-Porch-Ideas-and-More.com All rights reserved.
No content or photos may be reused or reproduced in any way without our express written permission.

At no extra cost to you, we earn a commission by referring you to some products on merchant sites. See our disclosure policy.
We, Front Porch Ideas and More, confirm, as stated on our privacy policy, that we do not sell personal information.

All content here is solely for presenting ideas. We recommend consulting with a licensed, experienced contractor before you begin your project.
We make no guarantees of accuracy or completeness of information on our site or any links to other websites contained here.


Thank you for taking your time to stop by. See what's popular and new here.

small rocking chair



Mary and Dave, Founders of Front Porch Ideas and More
Hi! We're Mary and Dave, lifelong DIYers, high school sweethearts, and we both love porches. You've come to the right place for thousands of porch ideas.
--- My New Molly Jo Book ---
Molly Jo Daisy Secrets of Cherry Forest book cover
Gentle mystery for kids 8-12. Adults like it too. My book helps kids slow down, notice, and appreciate everyday surprises in nature. It's for sale in right here!

--- Our Wonderful Sponsors ---
Shop for Porch Parts at Vintage Woodworks.

Use the PCA Visualizer to design your screen door

The Porch Store

--- End Sponsors ---


Our Newsletter, Front Porch Appeal
Learn more!


Thank you for being here!


small rocking chair
At no extra cost to you, we earn a commission by referring you to some products on merchant sites. See our disclosure policy.
We, Front Porch Ideas and More, confirm, as stated on our privacy policy, that we do not sell personal information.

All content here is solely for presenting ideas. We recommend consulting with a licensed, experienced contractor before you begin your project.
We make no guarantees of accuracy or completeness of information on our site or any links to other websites contained here.


Front Porch Home | Return to Top
Contact Us | About Us | Advertise with Us | Search | Site Map
Media | Privacy Policy | Disclosure | Legal Notice | What's New

XML RSS   Add to My Yahoo!  
Copyright © 2008-2026 Front-Porch-Ideas-and-More.com. All rights reserved.
No content or photos may be reproduced or copied in any way without our express written permission.


Page copy protected against web site content infringement by Copyscape