By Dave and Mary

Ranch Style House Plans

Comfort All on One Level

Finding a variety of great ranch style house plans online makes it easier to discover your dream home. Ranch homes offer the distinct advantage of having everything you need on one floor and styles have progressed greatly since its popularity after WWII.

We've found some interesting and exciting plans online from Family Home Plans that Mary and I are sure you will enjoy discovering. Although simple in design, roof styles vary making ranch homes interesting and of course, perfect for porches!

family home plans logo Would you like to get more details of these plans? Great!

Simply go here and jot down the plan numbers you see with some of our pictures.






We have gathered a variety of ranch style house plans for you to enjoy here.  See them at Front Porch Ideas and More.

Here you'll find an assortment of ranch style house plans and floor layouts along with a video and pictures to help you find the ranch home plan of your liking.


architecturally beautiful ranch home from plan 98267 at Family Home Plans
Architecturally beautiful ranch style home plan - Family Home Plans Plan 95979
Everything is on one level except the bonus room.

The expansive front porch is ideal for relaxing or entertaining. In addition, the open floor plan with a beautiful kitchen and 8 foot long island makes for very comfortable living space.


view of kitchen from ranch home from plan 98267 Family Home Plans
Ranch style home kitchen plan - Family Home Plans Plan 98267

Check Out This Neat Home Plan Video

This ranch home has 2336 square feet and includes a 44 foot long front porch! Check out the inside too:

Plan #59214



view of porch roof and ceiling details on ranch home from plan 98267 Family Home Plans
Tongue and groove porch ceiling - Plan #98267



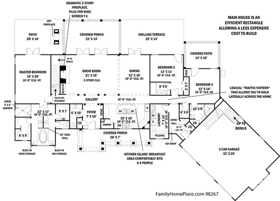
floor plan diagram for ranch home from plan 98267 Family Home Plans
Plan #98267



More Ranch Style House Plans

Ranch home plans are one-story house plans and typically range from one-story square to rectangular, L shaped, or U shaped designs.

It should be noted that although less expensive to build than other house designs, ranch homes tend to have a larger foundation and roof area which can increase the comparative cost to other home styles.

Ranch homes remain very popular and have a unique history in the U.S. having created affordable housing for many.

Here are a few of our favorite ranch style homes; click on the photo or link for more detailed information.


Cottage Ranch Home Plan

Ranch home with very nice front porch - beautiful stone work and shakes combine to make this a wonderful home. Plan #76335
Quaint Cottage Ranch-Family Home Plans 76335
This ranch house plan has what we call a patio porch which adds lots of appeal and great outdoor living space.

English Cottage Ranch Home Plan

ranch home graphic showing front porch and faux dormers from plan 59024 Family Home Plans
Fanciful English cottage appeal - Plan #59024
Note the wide front steps that make the exterior entrance appear more grand. Note how this plan maximizes all useable space the and spacious utility room. Even includes space for a home office.


view of porch roof and ceiling details on ranch home from plan 59024 Family Home Plans
Plan #59024


Country Ranch Home Plan

This country style "ranch" home with inviting front porch offers plenty of exciting features.

If the country kitchen, screen porch, large family room, and awesome master suite weren't enough, you also get sitting areas in the master bedroom along with magnificent cooking island in the kitchen.


ranch home graphic showing front porch and faux dormers from plan 74834 Family Home Plans
Family Home Plans Plan 74834



ranch home graphic showing front porch and faux dormers from plan 74834 Family Home Plans
Plan #74834



Southern Living Ranch Home Plan

There's nothing quite like the charm of an expansive front porch just waiting to be decorated for holidays and other family events; this ranch style home plan fits the bill.


expansive front porch in ranch home from plan 25102
Enjoy 467 square feet of porch! Plan #25102
A wonderfully large front porch and over 1800 square feet of living space.


home floor plan 25102 from Family Home Plans
Plan #25102



Contemporary Ranch Home Plan

We like the look of this more contemporary ranch style home plan. Although it doesn't have a large front porch, the home has an appeal all of its own. contemporary style ranch home from plan 73141 Family Home Plans
Roof line allows for high interior ceilings - Plan #73141



contemporary ranch home floor plan 73141 from Family Home Plans
Plan #73141

family home plans logo

Search House Plans

If you see a house plan you like on our site, jot down the plan # and have it handy for when you visit Family Home Plans. They have a wonderful collection of plans and many can be modified to fit your needs. Search to your heart's content.

Are you looking specifically for a PORCH PLAN? Great, then please take a look at these porch plans they offer (very popular with our readers!)


Looking for GARAGE PLANS? Great, then please take a look at these garage plans they offer We may receive a commission if you purchase a plan through our link. The price is the same to you. See our full affiliate disclosure policy.




Mary and Dave, Founders of Front Porch Ideas and More
Hi! We're Mary and Dave, lifelong DIYers, high school sweethearts, and we both love porches. You've come to the right place for thousands of porch ideas.

Our Sponsors
The Porch Store


Shop for Porch Parts at Vintage Woodworks.


Use the PCA Visualizer to design your screen door

End Sponsors



Helpful Links

Enjoy shopping Amazon (affiliate link)

Popular Pages

What's New

Join Our Newsletter Family

Porch Designs

Porch Ideas for Mobile Homes

Build a Porch | Small Porches

Porch Columns | Porch Railings

Screened Porches

Porch Curtains | Porch Enclosures

Porch Landscaping | Vinyl Lattice

Porch Decorating | Porch Ideas

Shop

Navigation Aids

Home | Top of Page

Site Search | Site Map

Contact Us

Policies

Disclosure Policy | Privacy Policy

Legal Info


Please Join Us Here Also

Join us on Facebook for porch talk Join us on Pinterest Subscribe to get our updates. Thank you!


Get in touch with pre-screened local professionals for work you need done
Find a Trusted Local Pro




Copyright© 2008-2025
Front-Porch-Ideas-and-More.com All rights reserved.
No content or photos may be reused or reproduced in any way without our express written permission.

At no extra cost to you, we earn a commission by referring you to some products on merchant sites. See our disclosure policy.
We, Front Porch Ideas and More, confirm, as stated on our privacy policy, that we do not sell personal information.

All content here is solely for presenting ideas. We recommend consulting with a licensed, experienced contractor before you begin your project.
We make no guarantees of accuracy or completeness of information on our site or any links to other websites contained here.


Thank you for taking your time to stop by. See what's popular and new here.

small rocking chair



Mary and Dave, Founders of Front Porch Ideas and More
Hi! We're Mary and Dave, lifelong DIYers, high school sweethearts, and we both love porches. You've come to the right place for thousands of porch ideas.
--- My New Molly Jo Book ---
Molly Jo Daisy Secrets of Cherry Forest book cover
Gentle mystery for kids 8-12. Adults like it too. My book helps kids slow down, notice, and appreciate everyday surprises in nature. It's for sale in right here!

--- Our Wonderful Sponsors ---
Shop for Porch Parts at Vintage Woodworks.

Use the PCA Visualizer to design your screen door

The Porch Store

--- End Sponsors ---


Our Newsletter, Front Porch Appeal
Learn more!


Thank you for being here!


small rocking chair
At no extra cost to you, we earn a commission by referring you to some products on merchant sites. See our disclosure policy.
We, Front Porch Ideas and More, confirm, as stated on our privacy policy, that we do not sell personal information.

All content here is solely for presenting ideas. We recommend consulting with a licensed, experienced contractor before you begin your project.
We make no guarantees of accuracy or completeness of information on our site or any links to other websites contained here.


Front Porch Home | Return to Top
Contact Us | About Us | Advertise with Us | Search | Site Map
Media | Privacy Policy | Disclosure | Legal Notice | What's New

XML RSS   Add to My Yahoo!  
Copyright © 2008-2026 Front-Porch-Ideas-and-More.com. All rights reserved.
No content or photos may be reproduced or copied in any way without our express written permission.


Page copy protected against web site content infringement by Copyscape